Συνεδριακό Κέντρο Ναυπλίου, Δήμος Ναυπλίου
Τοποθεσία: Ναύπλιο, Αργολίδα
Επιφάνεια: 10.000 τ.μ.
Μελέτη: 2000
Πελάτης: Δήμος Ναυπλίου
Επιφάνεια: 10.000 τ.μ.
Μελέτη: 2000
Πελάτης: Δήμος Ναυπλίου
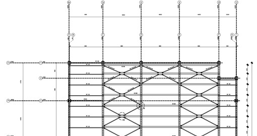
Αρχιτεκτονικά η σύνθεση αποτελείται από τρεις επιμέρους όγκους και στατικά μορφώνονται τέσσερεις επιμέρους φορείς.
Ο φέρων οργανισμός του τμήματος Α, συνολικής κάτοψης 400τ.μ, αποτελείται από μεταλλικά πλαίσια ανοίγματος 18,75μ ανά περίπου 5μ και έχει μόνο μια στάθμη ύψους περίπου 9μ. Τα υπόλοιπα τρία τμήματα αποτελούνται από φορείς ωπλισμένου σκυροδέματος με μεικτό φορέα (πλαίσια και τοιχώματα) σε κάνναβο της τάξης των 5μ. Σε τμήμα του φέροντος οργανισμού με απαίτηση για εξασφάλιση μεγάλου ανοίγματος κατασκευάζεται προεντεταμένη δοκός.