Προεντεταμένη - Προβολοδομούμενη Οδική Χαραδρογέφυρα στα Τζουμέρκα
Τοποθεσία: Τζουμέρκα
Επιφάνεια: Συνολικό Μήκος: 350 μ.
Μελέτη: 2008
Πελάτης: Ν.Α. Ιωανίνων
Επιφάνεια: Συνολικό Μήκος: 350 μ.
Μελέτη: 2008
Πελάτης: Ν.Α. Ιωανίνων
Η γέφυρα εξυπηρετεί την κυκλοφορία της οδού σύνδεσης της περιοχής των Τζουμέρκων με την Εγνατία Οδό υπεράνω χαράδρας.
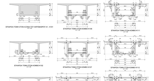
Το πλάτος του καταστρώματος είναι 12.50μ, αποτελείται από τέσσερα ανοίγματα 75+100+100+75μ και το ύψος των βάθρων είναι 23μ.
Ο φορέας της γέφυρας είναι προεντεταμένος μορφής κιβωτίου με εξωτερικούς προβόλους, τα βάθρα κοίλα τοιχοειδή και η θεμελίωση γίνεται με πασσάλους.
Η γέφυρα κατασκευάζεται με την μέθοδο της συμμετρικής προβολοδόμησης ανά πυλώνα.